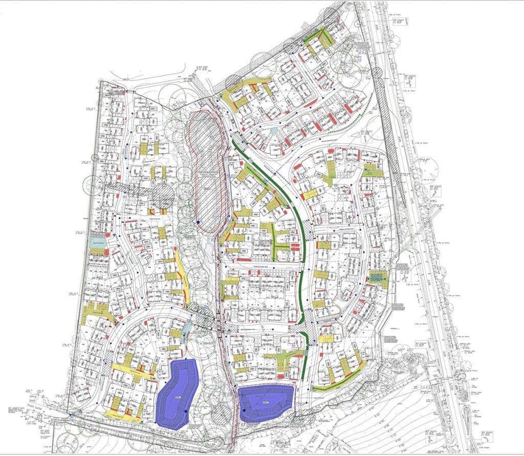
Former Cwmbach School, Bridge Road, Aberdare
QuadConsult have successfully completed RIBA Stages 1 – 7 for this development. RIBA Stage 1 – 4 were completed on behalf of Cadarn Group from conceptual design through to securing the relevant sectional agreements. The site required Section 38 and 278 highways approval, along with SAB and Section 104 agreements for the proposed foul serving the development
Read MoreBrynhir, Tenby
QuadConsult Ltd reviewed the current engineering and proposed numerous value engineering considerations to provide a more economical and sustainable design.
Read MoreArbikie Distillery, Renewable Energy Project
Civil design of a wind turbine with associated infrastructure, with the Civil infrastructure for an electrolyser at Arbikie distillery
Read MoreDragon LNG Wind Farm
QuadConsult is proud to be supporting Knights Brown with a Civil Balance of Plant design commission for the new wind farm at the LNG natural gas import facility at Milford Haven.
Read MoreHowells Department Store, Cardiff
QuadConsult Ltd is involved in the transformation of the oldest department store in Cardiff into a vibrant mix of leisure, commercial, residential, and office space.
Read MoreCumberhead Wind Farm
Cumberhead is a robust, streamlined construction, with reduced import volumes through reuse of site-won materials, and structures detailed for durability, inspection and safe operation.
Read MorePadel Courts Cardiff
Cardiff’s new undercover Padel Courts open in Llandaff playing fields.
Read MoreWimbledon Park Tennis Court 1 Extension
Planned slab extension of the cantilever balconies on the highly prestigious Court 1, Level 3 of Wimbledon Park Tennis Courts.
Read MoreForest Walk Roundabout, Lydney, Gloucestershire
Roundabout for large residential development in Lydney, Gloucestershire
Read MoreForest Walk, Lydney, Gloucestershire
All Civils and Structural design requirements for large housing development in Lydney, Gloucestershire.
Read More